1º PREMIO:
Memoria
El Jockey club Córdoba, presenta una verdadera oportunidad para consolidar y potenciar el predio actual con futuras actividades en áreas vacantes. La propuesta busca reforzar la identidad de la institución como Polo deportivo, Recreativo y Cultural de la ciudad.
Entendemos esta instancia del concurso como una oportunidad para reflexionar acerca de: los sistemas de conexión y accesos a la institución desde la ciudad; interpretar y reordenar los sistemas de vínculos internos del predio, tanto vehicular como peatonal; incorporar nuevos programas cubiertos y descubiertos, con el fin de integrar las áreas existentes con las áreas vacantes; incorporar un nuevo parque recreativo, educativo, deportivo y cultural a escala urbana tan necesario en la zona Sur de la ciudad.
Todas estas acciones tendrán la misión de reforzar la integración entre el deporte, la recreación, la educación y la cultura. Para ello se define una estrategia que articule lo tangible con lo intangible, en una propuesta integradora de lo existente y lo nuevo, reubicando al Jockey Club Córdoba en un importante polo de actividades a escala de la ciudad.
Nuevo nodo deportivo y acceso sur
La estrategia de redefinir un nuevo sistema de acceso al sur del predio por Av. Celso Barrios, reflexiona acerca de la relación del Club Jockey y la ciudad, a la vez que busca resolver una estructura de movimientos que contemple ingresos y egresos al club que resuelva los problemas actuales. El nuevo sistema de acceso pretende ordenar y remediar el conflicto de transito que se produce sobre Av. Valparaíso a la vez que define una nueva cara del Club al sur de la ciudad, reconociendo la escala y el potencial paisajístico del Bv. Celso Barrios.
Se complementa la idea con la incorporación de una nueva rotonda sobre el Bv. Celso Barrios y la calle Alumbrado, lo que permitirá ordenar y mitigar el impacto del tránsito masivo en los momentos de mayor demanda de usos.
Rambla del Jockey
Una pequeña cuadrícula articula y organiza mediante una plaza de acceso la estrategia al interior del predio. Se ordena el sistema de ingreso vehicular derivando los recorridos a nuevas áreas de estacionamiento detrás de las residencias para deportistas y el mini estadio cubierto. De allí se desprende una rambla peatonal que articula lineal y transversalmente las actividades existentes y nuevas del Club. Esta rambla tiene el objetivo de articular el nuevo acceso sur con el Ovalo, y en su recorrido integrar y poner en relación las áreas existentes del predio. El remate culmina con una rampa/túnel que conecta, sin interferencias, el predio con el Nuevo Parque Hipódromo propuesto dentro del ovalo.
Nuevo Parque Hipódromo
La intervención tiene la base conceptual de crear mayor superficie de sustentabilidad y resiliencia en la ciudad, a través de los espacios verdes tanto públicos como privados. Se trata de brindar un espacio donde se genere una isla de Biodiversidad con vegetación nativa y exótica (no invasora), que conformen praderas y estratos de masas vegetales; conformados por herbáceas y arbustivas que alberguen aves, mariposas, abejas, insectos que en las ciudades necesitan refugio.
El Ovalo del Jockey se sumaría (ya que tenemos a Ciudad Universitaria muy próxima) a un sistema de corredor biológico urbano, -haciendo un aporte significativo de espacio verde a esta área de la ciudad. – Las aves del sector, que ya se albergan en los árboles existentes, se verían favorecidas ya que la propuesta introduce mayor biodiversidad para favorecer alimentación y nidificación de las aves mencionadas.
El agua en las lagunas de retardo atraen a las aves periurbanas, más que nada en invierno cuando el agua escasea en las sierras de Córdoba. El agua de lluvia queda en el lugar, se aprovecha para nutrir el suelo y mejora la calidad del mismo.
El espacio verde propuesto mejora la calidad de vida al ambiente y a las personas que puedan disfrutarlo. Para ellos, se incorporan áreas de huertas y aromáticas, con la idea de introducir programas de educación ambiental de la escuela del Jockey y aquellas cercanas.
El Nuevo parque Hipódromo dispondrá de espacios verdes de calidad, caminos y senderos que quedan inmersos en la vegetación de praderas y masas vegetales de no más de 1,50 metros de alto.
Programas
Acceso sur y tratamiento de bordes
Se resuelve una nueva marquesina de acceso al sur del predio, que incorpora una recepción y una casilla de control de ingreso y egreso a las diferentes actividades. Parte de la marquesina se ocupa con el Sum de las residencias para deportistas.
El tratamiento del perímetro del predio se resuelve con un filtro metálico, permeable y seguro que unifica el borde del predio en los diferentes frentes hacia la ciudad.
Nuevos programas recreativos, educativos, de eventos y deportivos en el Ovalo
Junto a la propuesta de paisaje ya mencionada, se incorporan actividades deportivas como la pista de ciclismo de 1.800 metros lineales en el perímetro del Ovalo, pista de patín y skate y postas aeróbicas.
Un sistema de sendas recreativas junto a islas de educación ambiental va tejiendo el parque tanto en sus perímetros como en el sentido transversal. Se plantean diferentes circuitos con propuestas de educación medio ambiental, incorporando áreas de huertas, colectores solares, como paseos educativos de interpretación del paisaje propuesto. Se ubican seis postas/miradores en islas circulares que, elevadas 1,5 metros del suelo, permitirán contemplar la actividad del turf, el castillo del Jockey, como la interpretación del propio parque Hipódromo junto a su biodiversidad.
Por último, se deja un área de casi 4 hectáreas, sobre el sector Oeste del Ovalo, libre de vegetación y sectores de uso permanentes; generando un espacio híbrido pensado para eventos masivos como festivales, ferias, y alguna otra actividad que requiera de esa superficie.
Una batería de servicios y sanitarios semienterrada se dispone en la entrada al Ovalo, para dotar la demanda del uso diario del parque.
Mini estadio cubierto y residencias para deportistas
El mini estadio, se ubica sobre el vacío del estacionamiento existente en el sector Este, mientras que las residencias deportivas se ubican sobre el vacío del sector Oeste, en una estrategia en claustro rodeando el algarrobo existente. Una plaza articula ambos programas. Para evitar el impacto en altura, el mini estadio se soterra 1,50 metros del suelo, permitiendo al armado de los sectores de apoyo en medios niveles, lo cual resulta en una propuesta de espacios exteriores con rampas y escaleras que ayudan a diferenciar los accesos. Los deportistas/artistas ingresan por la rampa que lleva directo al nivel -1,50, mientras que el público accede al nivel +1,50 desde la pequeña plaza ubicada al norte del edificio. Ambos accesos se articulan a la plaza del Jockey.
Recorridos internos + Hitos de referencia
Una serie de recorridos peatonales, se van articulando a través de una propuesta de pequeñas plazas en los sectores más representativos de cada actividad. Se ubica un hito de referencia lejana en cada plaza como puntos de orientación en tan extenso predio.
Movilidad y estacionamientos
Se mantienen y ordenan las plazas de estacionamientos, evitando el ingreso descontrolado de vehículos en el predio. Para ello se disponen calles y áreas de estacionamiento en los bordes del predio ubicados estratégicamente en función de arribar a cada sector.
Para eventos masivos, se plantea la posibilidad del uso excepcional de las 3 canchas de rugby auxiliares ubicadas al Este del predio, lo cual podría albergar cerca de 1000 vehículos que ingresarían desde el Bv. Celso Barrios, a través de un portón de uso esporádico.
Conclusión
La propuesta intenta acercar a la Institución y al público invitado, un espacio renovado de uso recreativo, con la posibilidad de desarrollar actividades en un ambiente natural de calidad. Una propuesta de actividades que acerque la posibilidad de formar integralmente a las personas, donde el deporte, la recreación, la educación ambiental y la cultura sean los pilares que refuerzan la identidad de un Club con Historia y proyección de futuro.
2º PREMIO:
Memoria
La oportunidad de generar una nueva CIUDAD DEPORTIVA, RECREATIVA Y CULTURAL en el predio del Jockey Club Córdoba nos ofrece un escenario para repensar prospectivamente los ámbitos de actividades deportivas, actividades recreativas al aire libre, con la actividad turfística en contextos periurbanos; y en este caso como una nueva centralidad para el sector Sur de la Ciudad de Córdoba.
La institución Jockey Club Córdoba, con su emblemático Ovalo de un espacio vacío, con sus intersticios, sus usos programáticos e infraestructuras configuraran un nuevo Parque Ambiental, Cultural y Deportivo., como un aporte a la reestructuración, y al ordenamiento interno del predio para un mejor funcionamiento del mismo y su relación con los espacios públicos de bordes fortaleciendo la vinculación del Barrio Jardín con la Ciudad a modo de generar una red verde que recupere el sistema biótico de la ciudad, articulando los parques urbanos públicos para una mayor integración social y ecológica .En ese sentido la propuesta del proyecto de CIUDAD DEPORTIVA RECREATIVA Y CULTURAL Jockey Club Córdoba, convocada por el presente concurso pretende la creación de un ámbito de relación con la ciudadanía y su entorno urbano, a través del Nuevo Parque Hipódromo y el Centro Deportivo de Alto Rendimiento Jockey Club Córdoba como un espacio significativo institucional, convocante, representativo que congregue, vincule, y facilite el desarrollo de actividades recreativas, culturales y deportivas.
La propuesta se sintetiza en una intervención con un gesto fuerte y contundente, como sería la generación de una Placa Programática en sentido NORTE/SUR, que va variando su articulación en su desarrollo, configurando espacios abiertos, semicubiertos, a modo de un escenario contenedor de diversas actividades propuestas.
La Placa Programática conecta los bordes urbanos de la calle Elías Yofre hacia el Norte, y de la calle Celso Barrios al SUR, vinculándose con el tejido barrial y generando un ordenamiento interno de los espacios verdes fragmentados a través de una matriz soporte de espacios de uso públicos y semipúblicos.
De tal forma se tensiona el vacío siguiendo los puntos cardinales N/S a través de un Eje Axial. Este Eje enlaza el orden orgánico de la naturaleza con los flujos de drenajes, las ondulaciones del suelo, las lagunas en sentido ESTE/OESTE, a través de un conector que actúa como un canal de riego, y un paseo articulador de posibles escenarios para actividades efímeras, en sintonía con un recorrido lúdico a través de parches de vegetación nativa de estrato arbustivo, y herbáceo. Esta nueva matriz verde configura el borde del espacio abierto del ovalo para soporte de futuras actividades recreativas / deportivas / culturales / gastronómicas de apoyo a la actividad turfística.
La propuesta redefine un predio con una historia deportiva para la actividad turfística con preexistencias de valor históricos como son las tribunas y sus plazas, los pistas, los cercos, las infraestructuras, los micro parques con su vegetación, que marcan la identidad del predio. Dichas preexistencias actualmente están ocultas, por las nuevas intervenciones realizadas, necesitando ser develadas y valorizadas.
La acción de diseño y planificación del predio trata de reintegrar estas preexistencias al tejido del barrio con el nuevo Parque del Ovalo a partir de vincular la estructura urbana preexistente al mismo.
La Placa Programática propuesta configura una pieza arquitectónica en el Paisaje, redefiniendo el predio del Jockey Club como una CIUDAD DEPORTIVA, RECREATIVA y CULTURAL. Para lo cual se pone en juego un soporte programático, catalizador de actividades, tanto públicas como semipúblicas dentro del predio, siendo la nueva placa y las áreas de convergencia, un sistema urbano de vinculación social inserto en un Parque, que pueda reunir, ligar, cocer e integrar un espacio único de convivencia, y de recreación, que albergara una variedad de opciones y posibilidades programáticas como la recreación, el deporte, el ocio y distintas eventos musicales y culturales regulados en horarios que no interfirieran la actividad turfística. Es importante mencionar que la Placa Programática no interfiere el espacio oval con sus pistas para las carreras hípicas, por ello se proponen conexiones por niveles de subsuelo y marcas en el solado que enfatizan la conectividad NORTE/SUR y complementan la singularidad como Pieza Icónica del predio.
Estrategia General
a) Sistema de movilidad. Vinculaciones. Accesos. Sistema de espacios libres.
La estructura de circulación interna propuesta reordena la existente. Se materializa una senda peatonal acompañada de una bicisenda anular que da sentido a la geometría del Parque del Ovalo articulando el espacio libre perimetral, con sus espacios de permanencia creando un paseo y poniendo en valor el paisaje del predio y sus visuales hacia las preexistencias. Las calles internas de tránsito vehicular se reordenan vinculando las distintas actividades deportivas configurando plazas de estacionamiento en el borde sur del Ovalo y plazas de estacionamientos en la calle perimetral con accesos desde la calle Celso Barrios. Los puntos de accesos (ingreso y egreso) al predio se resuelven diferenciando los flujos de las diferentes actividades deportivas, recreativas y de servicios, manteniendo el acceso (ingreso/egreso) peatonal secundario de socios a las actividades deportivas existentes:
Desde la calle Elías Yofre se plantea un acceso público peatonal (ingreso/egreso) a una plaza de arribo a la placa programática y a las nuevas plazas de las tribunas del Castillo del Jockey, y del Comisariato accediendo al nuevo Parque del Ovalo a nivel +/-0.00 y bajo cota de predio a través de un paso peatonal que vincula el nivel de estacionamiento del paseo comercial con nuevas plazas de estacionamientos propuestas y ubicadas a nivel de subsuelo,(-3.00 mts)vinculándose con el Parque del Ovalo sin interrumpir la actividad turfística. La placa de estacionamiento bajo cota de predio con iluminación cenital (+1.’00) se resuelve con una cubierta verde conformando un pequeño talud de borde en continuidad al parque.
Desde la calle Celso Barrios se plantea el acceso peatonal a través de una Plaza de arribo Sur al nuevo Nodo Deportivo (mini estadio y dormís). A nivel vehicular se jerarquizan los accesos existentes distribuyendo los flujos vehiculares por la calle perimetral que enlaza las plazas de estacionamiento rediseñadas, previendo y diferenciando los accesos a las actividades deportivas y a las caballerizas, como a los servicios de las actividades logísticas.
Este acceso cobra un valor significante en la propuesta, enfatizando la conectividad Norte /Sur, vinculando la placa programática través de sendas peatonales y pasarelas (con el mini estadio, los dormís y las diferentes actividades deportivas (canchas de hockey) articulando los espacios desde un uso público a semipúblico hacia el interior del predio. Se prevén pasarelas telescópicas para el paso al interior del ovalo en caso de eventos. Se mantiene el actual puente de ingreso para los caballos. Desde la calle Valparaíso, se plantea el acceso vehicular y peatonal (ingreso /egreso) principal al Club Jockey Club, y el Ingreso al Colegio, proponiendo su egreso por calle Celso Barrios. Desde la calle Alumbrado se prevé accesos de servicio y logística secundarios, ubicado en los extremos del Ovalo, donde se acompaña con plazoletas de arribo. A nivel del espacio público perimetral se prevé el ensanche de veredas cediendo una franja de 1.50 mts , a lo largo de la línea de frente(LM) del predio para espacio público sobre la calle Valparaíso y la calle Celso Barrios por tratarse el predio como una parcela atípica con destino a actividades de uso recreativo y deportivo .Se prevé el tratamiento paisajístico en todos sus bordes con diseño de solados , luminarias y forestación con especies nativas o adaptadas asociadas a las existentes como: Parasenegalia Visco (Acacia Visco en calle Alumbrado, Parkinsona aculeata(Cina -Cina )y Bauhinia Forficata (Pezuña de Vaca)en calle Celso Barrios) Jacaranda Mimosifolia,( Jacaranda)en calles Valparaíso y Elías Yofre)y una pequeñas plaza con Eucaliptus existentes en su intersección. Acompañando el borde con bicisendas vinculadas a nivel urbano.
b) Parque Hipódromo. Vegetación
El Nuevo Parque trasciende los límites del óvalo vinculándose con conectores verdes espacios de borde y las calles interiores del Jockey Club Córdoba. El Nuevo Parque se tensiona en sentido N/S a través de un Eje Axial materializado por una Placa Programática como un sistema de bandas sistémicas, que contienen programas diversos interconectados, con equipamientos efímeros para la recreación que propician el uso colectivo del espacio Su acceso peatonal se plantea a través de una rampa que se vincula con el nivel de estacionamiento ubicado bajo cotas de predio En el borde norte del Parque del Ovalo se plantea un borde “buffer” de parches de vegetación nativa y adaptada de estratos arbustivos medio y bajo con texturas y colores diversos, atractores para la avifauna (Dietes Grandiflora ,Verbena Bonariensi); gramíneas (Cortaderia Senoalla,Pennisetum Rubra,Pennisetum Rupelli,Pennisetum Alopecuroides,Stipa tenuissima,Miscanthus Sinensis Zebrinus, Panicum Virgatum y Carex Buchananii Festuca Glauca para borduras ) y herbáceas resistentes a las exposiciones solares y heladas (Salvias Greggii, Salvia Mesa Azure,Santolina Virens ,Liriope Muscari,Ophiopogon Japonicum ) que configuran una nueva matriz verde y delimitan los distintos sectores del parque con su pradera como soporte para el montaje eventual de dispositivos de apoyo para realizar espectáculos recreativos, musicales, exposiciones transitorias. Las pistas del ovalo se delimitan con cercas metálicas blancas y un cerco vivo de Buxus Sempervirens , que acompañan un sistema de canaletas de agua.
En sentido ESTE/OESTE se propone un eje con una infraestructuras de agua materializado por un canal para riego que canaliza los drenajes y los vincula a las lagunas rodeadas con vegetación de borde de porte bajo a medio ( Paspalum Haumanii,Typha Angustifolia,Imperata Cilindrica “Red Baron”Cyperus Papirus, ) A lo largo del canal se demarca una senda de reconocimiento de los distintos jardines de colores. Las lagunas receptan los drenajes de las aguas pluviales del predio, las que serán tratadas para su depuración con plantas macrofitas (Carrizo-Phragmites australis-,Schoenoplectus californicus,Juncus effusus,Typha latifolia, Ceratophyllum submersum,Pistia stratiotes). Para su recorrido y disfrute se plantean dispositivos a modo de una pasarela circular que reconfigura el borde natural de una de las lagunas y una placa mirador con juegos de agua en la otra laguna donde se podrá quizás prever instalaciones para contener el agua en forma permanente a modo de una laguna artificial o bien prever una piscina de entrenamiento para los caballos.
c) Mini estadio y dormís.
El Estadio Jockey Club se propone como una figura icónica sobre la calle Celso Barrios, otorgándole un nuevo carácter al borde Sur del predio. El vínculo de la propuesta con la Ciudad se define a través de una plaza de Lapachos blancos (Tabebuia roseo -alba) y pórtico de ingreso, funcionando como un atrio urbano. El mini estadio se implanta sobre la Placa Programática propuesta, siendo una caja flexible capaz de albergar actividades deportivas, recreativas y culturales. Los espacios de transición en sus bordes, permiten que dichas actividades funcionen de manera independiente o integradas con sus espacios tangenciales. La Placa Programática con sus sendas peatonales y pasarelas (+3.00) contiene a su vez las gradas de las futuras canchas de hockey que acompañaran al mini estadio en una futura etapa. El mini estadio posee una doble piel; una caja externa de filtro metálico y una caja interna vidriada. Funciona como un volumen permeable que se relaciona con su entorno inmediato a través de un sistema conectivo de pasarelas, rampas y plazas verdes / secas.
La conjunción de la piel, que controla la incidencia solar en todo su perímetro, sumado al aventanamiento hacia el norte en su quinta fachada, y el microclima de la vegetación propuesta, garantizan un buen funcionamiento de sistemas pasivos desde el punto de vista sustentable. La piel con que configura al estadio abraza el volumen de Residencia para Deportistas, el cual se libera en planta baja con programas sociales: sum, bar, sanitarios, vestuarios, y un ala médica como soporte a las mismas y al micro estadio. En su segundo nivel contempla 28 dormitorios con baño privado. Por último, la terraza miradora funciona como un espacio de expansión para quienes utilicen los dormís y puedan apreciar las visuales hacia el resto del predio, compuesta por una estructura metálica con un módulo de 3×4 que permite la posibilidad de expansión en altura y laterales. De esta manera logramos un total de 1000 m2 como sumatoria de ambos pisos, con capacidad de 112 personas en sus 28 habitaciones de 12m2 cada una con baño privado, programas sociales y servicios médicos. Como resultado la superficie cubierta total de Mini estadio y dormís es de 3500m2.
En síntesis, proponemos una arquitectura integrada al sitio y al paisaje de su entorno como un todo interrelacionado. En este sentido, se conforma un ámbito que aporta al fortalecimiento de los valores ambientales y preserva el patrimonio natural y cultural. Por lo cual, el diseño del Nuevo Parque Hipódromo y el Mini Estadio en su conjunto constituyen la nueva imagen icónica para la CIUDAD DEPORTIVA, RECREATIVA y CULTURAL del Jockey Club Córdoba, poniendo en valor el paisaje y los espacios de uso colectivo para un desarrollo de una ciudad verde más sostenible en busca del bienestar de las personas y del ambiente que se habita, en estos tiempos de más incertidumbres que certezas.
3º PREMIO:
MEMORIA DESCRIPTIVA
ESCALA URBANA
Se intenta potenciar al sitio como pieza urbana a partir de la integración de los espacios que la componen, la definición de circuitos peatonales con acento en el eje articulador interno propuesto, y el diálogo de estos elementos con la ciudad, a partir de la reconfiguración del espacio perimetral del predio.
ANILLO INTEGRADOR
La vinculación franca de distintas piezas no sólo permite la organización programática sino también la generación de sinergia entre las mismas a partir de un diseño de espacio público perimetral integrador, donde “la vereda” es la protagonista a partir de su puesta en valor.
Se priorizan los recorridos peatonales amplios, que generen perspectivas abiertas y faciliten la lectura del sitio como un elemento orgánico único, favoreciendo la continuidad e integración, donde a partir de ello la relación entre los distintos programas y los vecinos sea más fluida.
Se intenta generar nuevos espacios verdes y recreativos que permitan interconectar no sólo los existentes, sino también los distintos sistemas y maximizar de esta manera los vínculos entre los mismos, potenciando el objetivo integrador de las distintas soluciones adoptadas a partir de la redefinición del límite privado.
La reconfiguración de la calle perimetral como una colectora “calle 10” de carácter público, permite mitigar los conflictos de circulación vehicular existente, y facilitar el ingreso a las distintas áreas del club en diferentes puntos.
CAMINO DE LA HISTORIA
Uno de los principales elementos de la propuesta lo constituye el “camino de la historia” un recorrido peatonal de perfil histórico, que vincula el Castillo del Jockey y el nuevo Mini-estadio con su explanada pública.
Este paseo contiene mojones que hacen referencia a la historia institucional y deportiva del club y está acompañado por distintos espacios de uso donde los usuarios pueden descansar, contemplar las actividades circundantes (caballerizas, canchas, etc). También pueden informarse sobre los acontecimientos históricos mediante tótems interactivos dispuestos a lo largo del paseo.
La continuidad de los distintos tramos, incluyendo en la reserva natural, se potencia a través de la generación de cruces bajo pista que no solo vinculan los programas y dan continuidad e interconexión a los sistemas de usos, sino que, a su vez, alojan en el primer tramo cubierto el “museo del club” y en el segundo un salón de usos múltiples próximo al castillo del jockey. A su vez, este último tiene la posibilidad de generar un vínculo con el subsuelo de estacionamientos de la ampliación del centro comercial, flexibilizando el acceso desde ese sector.
SISTEMA DE CONTINUIDAD DEL MEDIO BIOLÓGICO
La intervención en el predio genera una conexión de los espacios verdes existentes entre sí. Consiste en la reconfiguración del espacio peatonal a través de la recalificación de veredas y plantación de especies nativas, generando corredores biológicos de elevada calidad ambiental. La continuidad de solados especiales absorbentes y un diseño del arbolado según colores dominantes y follaje, permiten maximizar la fluidez del recorrido.
El objetivo es potenciar la biodiversidad, fomentar la movilidad urbana activa y generar un sistema de bioretención de aguas pluviales. El sistema contempla pavimentos permeables aptos para estacionamiento, estaciones de tratamiento de residuos inteligente, estacionamientos de bicicletas, canteros, cazoletas, jardines de lluvia y equipamiento urbano. Se pone en valor el arbolado urbano existente, se renuevan las especies en mal estado y se intervienen las superficies absorbentes con especies nativas.
HACIA UNA RESERVA NATURAL
Entendiendo al centro de la pista del hipódromo como parte de un conjunto, se intenta consolidar una pieza compuesta por dos sistemas de usos.
*El primer sistema está conformado por la secuencia de parque-reserva natural que contiene diversas intervenciones paisajísticas, donde conexiones transversales permiten dar identidad, unidad y simplicidad al conjunto. Este parque-reserva, a su vez, libera estratégicamente su centro, generando un espacio amplio factible de albergar eventos de escala masiva.
*El segundo sistema contiene los “patios temáticos” conformando un área de cotidianeidad a través de la sinergia lograda por la proximidad con diversos sectores característicos del club. Se identifican el patio del rugby, el patio del hockey, el patio de la escuela, el patio del Jockey y el patio de eventos, este último el espacio más amplio de los mencionados por su proximidad con el centro comercial y factibilidad de realizar eventos de escala intermedia local con mayor frecuencia.
Esta pieza urbana conformada por los dos sistemas mencionados permite generar un espacio de gran carácter, referente no sólo del barrio sino también de la ciudad y la región.
A su vez, con el objetivo de maximizar la continuidad y fluidez en el espacio, y generar variedad de escalas en función de los distintos sectores y actividades propuestos, se generan espacios de escalas menores que pueden ser apropiados y vividos por los usuarios, pero con visuales y apertura al resto del conjunto.
Otro de los objetivos principales es recuperar y potenciar los sistemas biológicos, el paisaje natural y la puesta en valor de la identidad del sitio.
En la búsqueda de potenciar el carácter paisajístico del área de intervención, es que la propuesta aborda el reacondicionamiento y puesta en valor de los espacios peatonales circundantes de forma tal de anticipar la llegada al parque-reserva desde distintos sectores.
Se propone en el centro de la pista un área de conservación ambiental, de recuperación paisajística y regeneración de la flora y fauna autóctona, protegiendo dicho centro con áreas buffer para mantener la calidad ambiental y biológica. A su vez se aumenta el tiempo de escorrentía y las áreas de expansión del cuerpo de agua. Se viveriza el sector con especies nativas.
Se definen dos subzonas de conservación: la primera próxima a los lagos de carácter de reserva sin intervención, y la segunda acepta intervención para regeneración de la biodiversidad autóctona.
COMPLEJO MULTI-ESTADIO
La propuesta para el complejo multi-estadio y dormis busca maximizar la relación exterior-interior, donde los nuevos espacios cubiertos y semicubiertos dialogan estrechamente con el exterior, intentando incorporar este último de manera tal que pueda ser disfrutado y vivido también en los espacios interiores. Se intenta maximizar esto en todo el edificio y vincular los diversos programas de forma flexible y permeable.
El concepto arquitectónico trata de combinar las actividades deportivas y administrativas de una manera contemporánea en busca de una imagen que brinde un nuevo carácter institucional a este espacio. Se intenta generar un espacio convocante, donde los protagonistas sean los usuarios y las actividades que allí se desarrollan.
Se utilizan recursos arquitectónicos y sistemas constructivos livianos y flexibles, conjugando no solo la actividad deportiva propiamente dicha sino remitiendo a una nueva identidad institucional.
Es por ello que, en el sector de acceso, se configura un gran espacio que tiene la posibilidad de funcionar eventualmente en conjunto con el multi-estadio, un espacio convocante cuyo marco de fondo es el mismo edificio y paisaje del club, la “explanada institucional”.
Exposiciones al aire libre y eventos de diversas escalas, pueden desarrollarse en este sector.
Uno de los aspectos centrales de la propuesta, es lograr un edificio donde todos sus programas cuenten con la posibilidad de expansión al exterior, logrando una arquitectura abierta, fluida y flexible.
PROGRAMA
La flexibilidad de uso y adaptabilidad a futuros cambios tienen un rol importante. Es por ello que uno de los objetivos funcionales es presentar una estructura resistente poco invasiva, donde se articulan espacios que permitan albergar diversos usos presentes y futuros, ya sean simultáneos o independientes, desfasados en el tiempo.
Al programa cubierto se accede desde un patio articulador donde el multi-estadio y vestuarios con sanitarios públicos se resuelven en un solo gran espacio, factible de ser subdividido en actividades deportivas menores según el evento o demanda. Por su parte, los programas de couching y atención medica junto al bar, se disponen en planta baja del volumen contiguo y poseen paneles móviles que permiten agruparlos de diversas formas con el objetivo de generar espacios más amplios o más pequeños según las necesidades. Los Dormis se ubican en planta alta logrando la privacidad y control que los mismos requieren.
AHORRO ENERGÉTICO
Se propone obtener ahorro energético en calefacción e iluminación mediante el ingreso de luz cenital para ganancia solar directa, con dispositivos de oscurecimiento en caso de ser necesario.
Asimismo, recuperar el agua de lluvia para alimentar los sanitarios del edificio y contribuir con el riego del parque.
Además, con el objeto de mejorar la eficiencia energética se propone el uso de paneles fotovoltaicos y calentadores de agua en la cubierta aprovechando las pendientes de la misma.
SISTEMA CONSTRUCTIVO
Se adopta una estructura resistente materializada en perfiles laminados en caliente, donde para el caso de columnas y vigas se utilizan los perfiles tipo «doble T» mientras que, en cubiertas de grandes luces o cerramientos verticales, en los que se proponen estructuras reticuladas, se utilizan los perfiles de sección tipo «T». En todos los casos se los considera vinculados mediante sistemas abulonados.
Las cubiertas planas y entrepisos se encuentran constituidas por sistemas premoldeados de hormigón mediante el uso de losetas huecas pretensadas simplemente apoyadas en las vigas de perfiles laminados.
A su vez, y para ser esto factible, la propuesta se encuentra prolijamente modulada, no solo por el requerimiento natural del sistema constructivo industrializado sino también de manera tal que puedan vincularse los espacios con mayor facilidad.
PAISAJE Y AMBIENTE
ENERGÍAS RENOVABLES:
Solar fotovoltaica, paneles solares en sistema ongrid, para evitar banco de baterías. (Iluminación parque). Dispositivos independientes, luces y semáforos LED con generación de energía solar propia.
GESTIÓN DE RESIDUOS:
Reciclables y Orgánicos. Tratamiento con biodigestores en bar y recolección de aceite vegetal utilizado (AVU), para generación de biocombustibles y evitar contaminación del agua.
TRATAMIENTO HÍDRICO:
Bioretención y recolección de agua de lluvia (cubiertas y jardines)
Recolección de agua de lluvia con reutilización para riego, inodoros y limpieza de espacios comunes. Reutilización de aguas grises.
VEGETACIÓN:
Respeto por las especies existentes, e incorporación de nueva flora nativa. Se reubican dentro del predio aquellas especies que interfieran con los nuevos programas.
SPOTS DE BIODIVERSIDAD:
Los spots de biodiversidad están integrados por arbustos, herbáceas, gramíneas y arboles bajos. Se privilegia el uso de diferentes plantas nativas que aportan múltiples servicios ecosistémicos tales como proveer un ambiente favorable a insectos y aves de la región, mejora y fijación de suelos. Pueden incluirse plantas exóticas, no invasoras perfectamente adaptables a las condiciones climáticas y edafológicas que aportan atractivo estacional.
IMÁGENES:
MENCIÓN DE HONOR:
PREDIO
El proyecto tiene como objetivo principal reforzar la identidad del Jockey Club Córdoba como polo deportivo, recreativo y cultural de la ciudad, a través de propuestas y programas que fomenten el vínculo entre las distintas disciplinas, promoviendo la interacción entre los socios, y la conformación de nuevos espacios de calidad para el desarrollo de las actividades.
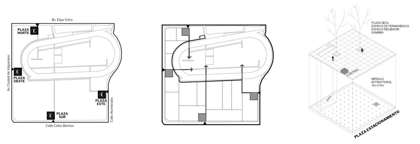
Una de las problemáticas más importante es la circulación vehicular y peatonal de los socios dentro del predio. Para evitar la congestión en los ingresos y promover eficiencia en el tráfico se reduce el área destinada para automóviles en el nivel 0, así el peatón recupera su papel como una figura destacada en el espacio exterior. Esta situación se resuelve aumentando la cantidad de ingresos al predio obteniendo un total de cuatro, uno por cada una de las calles que rodean el sitio. Los mismos están configurados por una nueva infraestructura que se repite en todos los casos: una PLAZA-ESTACIONAMIENTO de 66 metros de lado.
Esta tipología alberga en planta baja un espacio que recibe a los usuarios con una atmosfera agradable de luz y sombra, en la que se encuentra un puesto de control e información. En la planta de subsuelo se desarrolla el estacionamiento, configurado a partir del módulo 6×6 metros que luego se adaptara a todo el proyecto.
La PLAZA-ESTACIONAMIENTO SUR además se relaciona directamente con el mini estadio cubierto generando una expansión directa del mismo para las diferentes actividades que se realicen, el cual a su vez se integra con las residencias para deportistas a través de un parque verde.
El recorrido peatonal lo protagoniza una gran rambla de 6 metros de ancho que conecta directamente las plazas con el centro del predio, en donde se encuentra el nuevo parque. Esto permite una conexión física y visual fuerte y clara. Una pasarela secundaria de 3 metros de ancho configura el recorrido dentro de las áreas deportivas, conectando las grandes áreas verdes y promoviendo el acceso rápido a las 3 TORRESMIRADOR.
Las mismas contienen un programa de servicios correspondiente a cada sector de deporte: asadores, vestuarios, baños, depósito y culmina en el último nivel con un espacio mirador que integra visualmente al predio con su entorno inmediato. El mismo funciona como hito potenciando una clara ubicación de los usuarios en el sector.
PARQUE HIPODROMO
El Nuevo Parque Hipódromo es un gran espacio verde en el centro del predio de acceso público con horario restringido. Esto quiere decir que las personas que no sean socias del Jockey Club podrán disfrutar de este atractivo pero únicamente durante los días y horarios permitidos para que no interrumpa de ninguna manera la actividad turfistica que se desarrolla alrededor del mismo.
Con este proyecto el Club le ofrece a la ciudad un pulmón verde para disfrutar del ocio, la cultura y recreación, a la misma vez que invita al público a descubrir desde adentro el potencial de las instalaciones que lo rodean.
El ingreso al centro del ovalo por parte del público se ubica sobre la calle Elías Yofre, al norte. Se accede peatonalmente por el nivel cero y vehicularmente por el primer subsuelo del Paseo del Jockey. En ambos casos, ya sea por un nivel o por el otro, una gran plaza central recibe al usuario. Esta Plaza, al igual que las 4 anteriores, es de 66 metros de lado y funciona como un atrio enterrado.
La plaza alberga un programa de usos mixtos: una galería para exposiciones y un espacio para reuniones hípicas, servicios sanitarios, biblioteca y locales de carácter comercial/gastronómico. La conexión entre ese nivel y el nivel del parque se da a través de una rampa y una gran escalinata que funciona como gradas de un anfiteatro para apreciar cualquier espectáculo que se desarrolle en la plaza.
El parque contiene en todo su perímetro una plantación de gramíneas de una altura de 1m aproximadamente que actúa como límite circundante. Una gran rambla de 6m de ancho funciona como circulación conectando las áreas más importantes: el área de las lagunas de retención, las explanadas verdes, sectores de permanencia y esparcimiento, la plaza central y también conecta directamente con los ingresos establecidos para los socios desde el predio.

































